The clients bought this traditional detached family home in a lovely location with the express intention to double its footprint and create their dream house.
Studio Arkell were involved even before contracts were exchanged and invited to create a design to enlarge, modernise and enhance this solid but dated property. By the time the client’s completed on their purchase, planning had been granted, allowing the builders to move in very swiftly.
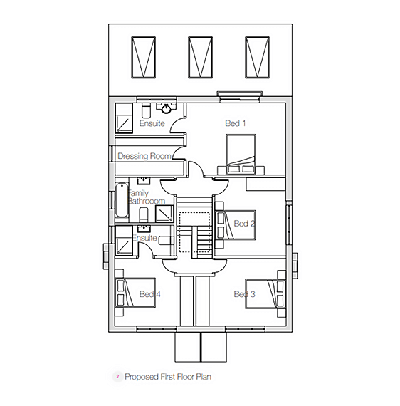
The home is now fully built and is the most wonderful space, full of light, with both social and quiet areas, heaps of practical design solutions, such as the separate shower in the utility/boot-room and the walk in dressing room to the master suite, both offering plenty of useful storage.
As you approach the house the main entrance is now fronted with a pretty and fully enclosed porch, leading through to a bright and welcoming entrance hall that naturally leads your eye through the generous family room and out to the green spaces of the newly landscaped gardens beyond. This ‘front to back’ connection through the house creates a natural and seamless flow that draws you through the house to the main living area.

The generous open plan kitchen/dining/living room, besides having a huge wow factor, has an immediate connection to the outside entertaining spaces, through full width bifold doors that truly bring the outside in and make the garden an additional room. The overhead lanterns combined with the expanse of glazing to the bifold doors completely flood the open plan space with natural light, adding to the airiness and overall appeal.

This open plan room is full of beautiful and considered design, and has created a flexible, sociable space with zoned areas creating more intimate space within the whole.

The joy of this generous family orientated room continues on into the creatively landscaped green space of the garden, divided into entertaining space with steps that instinctively draw you on through the formal lawn and on into the wild gardens.
This full house extension and renovation created a three-reception room, 4/5 bedroomed home that is generously proportioned and balanced with great natural flow, is both welcoming and flooded with natural light and is full of small design details that make living in the curated spaces that much easier.
If you would like to talk to us about your project please contact us to arrange a complimentary initial consultation.