This idyllic, hideaway bungalow set in secret gardens was already a wonderful home but in need of some updating and unifying of the exterior, in particular a dated conservatory that became overheated in the summer and cold in the winter.
BEFORE

Dated Georgian style windows and Conservatory.
AFTER
The clients also had a wish list that included:
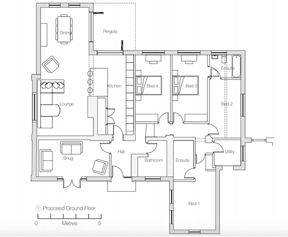
- Better proportioned guest bedrooms
- Appropriate bathroom/en-suite facilities for the guest rooms
- Enlargement, redesign and renewal of the kitchen
- Connection between the kitchen, lounge, dining rooms and gardens
- Creation of a second living room with access to the lovely but under-utilised, private front gardens
- Contemporary landscape design including both social and contemplative areas for cooking, eating and resting, along with detailed planting plan
The design delivered on a well zoned, open plan kitchen/living/dining room, where the rooms still maintain clear identity and comfort, whilst actually being fully connected.

The cool matt grey kitchen offers timeless contemporary style with the practicality of floor to ceiling storage, with work areas hidden while the wide peninsular offers connection with the open plan living. All this with bi-fold doors generously opening up onto the garden and its social spaces.
The dining area directly off of the kitchen happily pairs contemporary kitchen design and mid-century pieces with a traditional, cast-iron, period fire surround.

The living area is flooded with soft natural light from the roof lantern above as well as dual aspect windows and doors with access directly onto the gardens beyond. The end window panels perfectly frame sections of the garden, which as well as being a light source, acts as living and seasonally changing art.
The dual aspect contemporary bi-fold doors, sit at the perpendicular, perfectly framing the social, dining deck and truly bring the outdoors in.

The bungalow was extended across the entire rear of the property, which besides improving and updating the living areas, also enabled the 3 guest rooms to be enlarged to generous doubles, along with the addition of a new Jack and Jill en-suite.

The clients are thrilled with the additions and updates that have been made throughout their home and the ease with which they now occupy and live in these spaces.
They haven’t quite finished everything yet including updating the front windows, opening up to the front gardens and the rear garden landscaping, so watch this space for future developments!
If you would like to talk to us about your project please contact us to arrange a complimentary initial consultation.